Detailed 2D CAD Blocks for RCC Construction Units in DWG file
Description
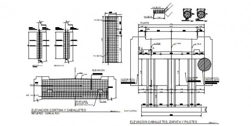
2D CAD structural blocks detailing of RCC construction units dwg file that shows footing plan dteials along with footing structure detail and reinforcement detail in tension and compression zone along with main and distribution hook up and bent up bars detials. The structure is a reinfoced concrete cemet (RCC) structure.
File Type:
3d max
File Size:
—
Category::
Construction
Sub Category::
Reinforced Cement Concrete Details
type:
Gold
Uploaded by:
Eiz
Luna

